設計完了!そしていよいよ6月に着工!!
先日投稿したアートスペースのあるマイホームづくり。着々と進行しています。
アートスペースのあるマイホームづくり その1/中古マンションのリノベーションを決心するまで
何度か打ち合わせを重ね、本日、無事に設計が完了しました。
これで確実に6月2日に着工となり、8月いっぱいで完成・引越しという運びになります。

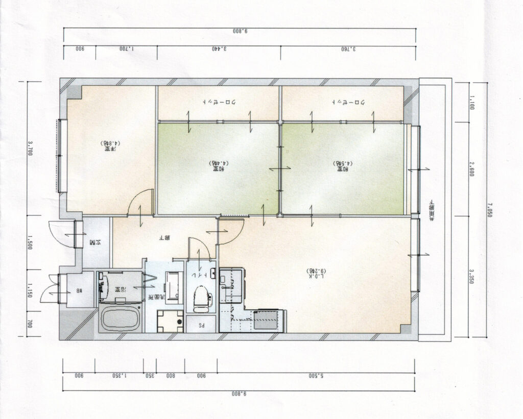
↑これが、
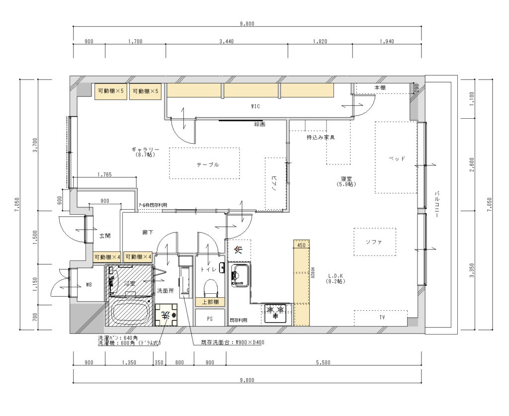
こうなります↓

図面では「ギャラリー」と書かれている部屋が、アートスペースとなります。
マンションの一室なのでそう広くはありませんが、この空間で、私自身が一人で集中してクリエイションを楽しむ時間を持つと共に、大好きなアーティストさんとコラボしてのワークショップや作品の展示、また、アートかかわらず、想いをともにする方々とのミーティングをしたりだとか、繋がる皆さまとワクワクを共創していく場所にしたいと思っています。
特に、ダイバーシティー(Diversity/多様性)さらにはインクルーシブ(Inclusive/包括的な)というワードがここ数年でよく聞かれるようになりましたが、私の願いとしても、例えばアートは決して敷居の高いものではなくて、人であれば元来持つ感性と心の豊かさというものを引き出すツールの一つでもあり、アートを専門とする人に限らず、誰もが親しんでいけたら良いものだと確信しているので、アートを一つのきっかけに、ここをハブ(中継)にして、様々な属性の方々が交流できる場になったらいいなと考えています。
この想いを実現させるべく、設計を詰めるごとに、パースもアップデートを重ねていただいて、ビジュアル的にシミュレーションする工程がとても楽しかったです。
以下のイメージは全て途中段階であり、色味や細かい点は違ってきますが、こうして見るのが楽しくてしょうがないわけです♪





最終的には、それぞれの空間の床も壁も窓枠もetc…素材、色等、全部自分で考えるので、クリエイティブなアドレナリンが放出されるとっても嬉しい体験でした。
・・・ただ実は、無理のない限られた予算で頑張っているので、収納など、引越し後改めて考える必要も多々あるのが正直なところなのです。。。
でも、今度は賃貸ではなく、私の所有する家!!
なので、次の段階としては、私自身がDIYにチャレンジすること!
そんなことも考えていて、相変わらずワクワクが止まりません ^ ^
続き
・アートスペースのあるマイホームづくり その3/築40年のマンションリノベーション開始!
・アートスペースのあるマイホームづくり その4/ようやく形が見えてきた!
・アートスペースのあるマイホームづくり その5/D I Yに目覚めそう!

